Glencoe Park Residences

In the “M-Streets”, in Dallas, TX



COMMUNITY HIGHLIGHTS

Welcome to the Glencoe Park Residences, an exclusive collection of eight custom-designed modern duplex residences in the heart of the coveted M-Streets neighborhood of East Dallas. This boutique development blends contemporary architecture with refined interior finishes, offering elevated living just one block from Glencoe Park.

Residents enjoy tree-lined streets, proximity to local dining and retail, and convenient access to Downtown Dallas and surrounding neighborhoods—an exceptional balance of neighborhood charm and urban accessibility.

Property Highlights:

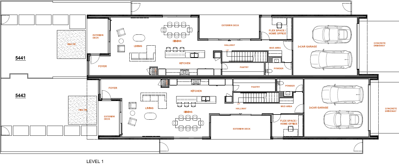
  • Over 3,200 square feet with 3 bedrooms, private offices, and expansive open-concept layouts

  • Outdoor decks and balconies with custom landscaping and hardscaping

  • Hardwood flooring throughout

  • Designer kitchens featuring stainless steel farmhouse sinks, 6-burner ranges with double ovens, beverage refrigerators, and pair 33” commercial-style column refrigerators and freezers

  • Smart home technology integration

  • Luxury spa-inspired primary suites with dual vanities, 67” freestanding soaking tub, oversized shower with dual showerheads, rain head, and handheld fixture

FEATURE GALLERY


LOCATION AND NEIGHBORHOOD

Located at 5438–5440 Anita Street and 5439–5443 Ellsworth Avenue, Glencore Park is set within the established M-Streets enclave of East Dallas, an area prized for its walkability, mature trees, and classic neighborhood character.

Just steps away, Glencoe Park serves as a daily extension of home, offering tennis courts, open green space, and shaded paths for recreation and relaxation. Tietze Park and White Rock Lake are also nearby, providing expanded options for running, cycling, and outdoor activities.

The location places residents within minutes of Lower Greenville and Knox-Henderson, where a curated mix of local restaurants, cafés, fitness studios, and boutique retail create a distinctly neighborhood-driven atmosphere. Everyday essentials and specialty markets are equally convenient, supporting both routine errands and elevated dining experiences close to home.

With direct access to US-75 and key Dallas corridors, commuting to Downtown, Uptown, and the Park Cities is efficient and straightforward. This address delivers a rare combination of residential tranquility and urban proximity in one of East Dallas’ most consistently desirable settings.

 

If you are having issues locating Glencoe Park, please type in "5443 Ellsworth Ave, Dallas, TX, 75206" into your search provider or maps app.


VIRTUAL HOME TOUR

Coming Soon!


FLOOR PLANS


SALES CONTACT

Jeff Mitchell

Modern Living Real Estate

Reach Out Now

Call or Text: 214-478-8009

Email: jeff@modernlivingdallas.com